台灣公宅100年──最完整圖說,從日治、美援至今的公共住宅演化史







內容簡介
唯一一本台灣社會住宅圖文演進史
社會住宅的樣貌如何隨政權而改變?
為何對你我而言,仍是一屋難求?
專文推薦
財團法人臺灣博物館文教基金會董事長 蕭宗煌
台灣現代建築學會會長暨中原大學副教授 黃俊銘
實踐大學建築設計學系副教授兼系主任 王俊雄
成功大學建築學系名譽教授 傅朝卿
走進台灣建築最貼近歷史脈動的一頁
從不同年代的公宅風景,看懂近百年的都市規劃
住房是集體消費商品?還是確保人民基本生存權利的必需品?
我們真的住者有其屋嗎?
房地產商炒作土地、墊高地價,都市裡仍一屋難求,
人口高齡化更讓居住偏好發生變化,新二代宅又會是什麼樣?
住宅是掌握台灣人民日常生活的每一面向,從飲食、睡眠、如廁到祭祀,無不與它有關。但是,擁有自宅只能成為一場華麗的美夢嗎?居住正義似乎根本無法落實。
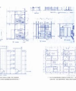
從日治時期開始,經過戰後美援時期,直到如今;從公營住宅、營團住宅、節約住宅、美援國宅、集中興建國宅,到經濟住宅、國民住宅,及目前的社會住宅;政府大量積極興建公共住宅,原因無他,只因公宅是負有政策任務的公共住宅營建,它是基本人權而非自由市場下的商品。
儘管百年來的歷史實踐,住居治理仍然擺盪於平價、合宜、社會、貧民住宅之間,而缺乏對台灣公共住宅一個明確的定義,究竟民眾需要怎樣的住屋?政府和建築師想要設計出什麼形式的住宅與社區?政策和現實之間又該如何取得平衡?
作者簡介
沈孟穎
畢業於中原大學室內設計學系與成功大學建築學系,自投入學術領域以來,長期關注空間的現代性(化)歷史,也就是空間形式如何從傳統社會過渡至現代社會的轉化過程,以及思考如何縮短學術史學與大眾間距離的可能。
此外,其從史學研究出發,延伸至文化資產經營與再利用領域,特別關注住宅與社區類型文化資產保存與再利用探討,也多次參與國際世界遺產年會發表論文。她認為沒有具深度的空間史研究,就難以看清與定義文化資產的價值與意義,也難有感動人心的再利用作品。
現為實踐大學建築學系兼任助理教授,台灣現代建築學會理事。
著作:《咖啡時代-台灣咖啡館百年風騷》專書(獲新聞局金鼎獎最佳著作人獎入圍)
目錄
推薦序
推薦序:建築圖面史料作為博物學研究基礎的可能性
推薦序:深描公宅的現代性圖景
推薦序:走入台灣公共住宅的時空隧道
序言:現代住居的一片風景
導論:為民建屋--住居現代性的切面
壹 公營住宅:衛生的移住天地
經濟保護事業下公營住宅(一九一○至一九三六年)
維持健康的容器
居所成為文明競技場
貳 營團住宅:節約的戰役前線
戰時節約資源的營團住宅(一九三七至一九四九年)
生存限度小屋
帝國的前線南進的玄關
參 美援國宅:自強的示範櫥窗
軍事威權體制下中美合作國民住宅(一九五○至一九六四年)
促進勞動的基地
中式民主之窗裡西式生活
肆 經建國宅:效率生產的實驗場
發展型國家體制下經建國宅(一九六五至一九七四年)
效率生產實驗場
富國強民的表徵
伍 樂透國宅:追逐獲利的投注所
形式民主與經濟狂飆下直接興建國宅(一九七五至二○○○年)
追逐獲利的商品
競逐治理績效的好商品
陸 明日的宜居住所?國家與日常生活規劃過去與未來
未抵達的現代性住居旅程
朝向未來的明日居所
台灣公共住宅發展大事紀
附錄
參考文獻
ISBN:9789865534370
出版社:PCuSER電腦人文化
規格:平裝 / 256頁 / 23 x 17 x 1.79 cm / 普通級 / 初版
出版地:台灣

























